Marine Heritage Artisans and Tastes Market Temporary Relocation

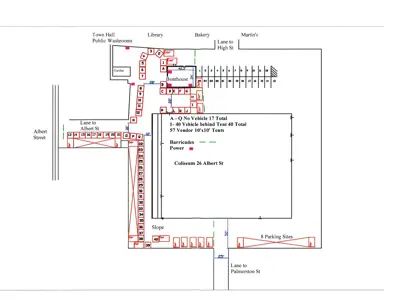
In coordination with the Town of Saugeen Shores, the Southampton BIA, and the Marine Heritage Society, the Artisans & Tastes Market will undergo a temporary reconfiguration starting August 1, due to ongoing road reconstruction on High Street in Southampton.

This updated layout is intended to improve traffic flow and public parking on the north side of the Coliseum in Southampton. The Market will continue to operate in the Coliseum area, with a portion of the layout shifting to the front and South side of the Coliseum.

“I would like to thank the Marine Heritage Society and the Southampton BIA for their collaboration and continued efforts to advance a solution for the temporary relocation of the Marine Heritage Artisans and Tastes Market for the remainder of the 2025 season,” said Mayor Luke Charbonneau.

The goal of this updated layout is to better support downtown accessibility and encourage a more connected and vibrant experience during construction.

Subscribe Back to News Search

Contact Us

Town of Saugeen Shores
600 Tomlinson Drive, P.O. Box 820
Port Elgin, ON N0H 2C0
Phone 519-832-2008
Toll Free 1-866-832-2008
Fax 519-832-2140